(71) 99210-5927 (71) 3321-6318 vanianazare@gmail.com

 

IMÓVEL

REFERÊNCIA: 869
REFERÊNCIA: 869

2 hectares, próximos do centro urbano, usina elétrica, pode ser condomínio, ou muito mais.

Lote / Terreno Comercial - Residencial/Comercial - Para Investidores

VENDA $200,000.00
WhatsApp
Atendimento Pelo WhatsApp

Descrição do Imóvel

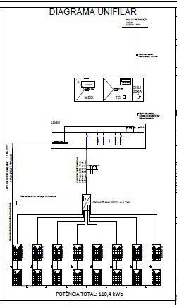
2 HECTARES  banhado por rio, relevo suave, ideal para produção energia solar, eletricidade limpa, já tem padrão, transformador e linha de transmissão pronto para até 75KV. Há projeto para ampliação da usina SOLAR, com todas as informações necessárias e mesmo oriantação para finaciamento. Terreno demarcado por engenheiro agrônomo. Tem estrada em ótimo estado levando até ao centro de Nazaré, são 2400 metros de distância, 11 minutos de carro. Ideal para se fazer um condomínio, que será próximo do centro urbano e ao mesmo tempo rodeado pela natureza com autonomia em ENERGIA SOLAR. ESCRITURA PÚBLICA todas as taxas em dia. APROVEITE, é a chance de explorar e fazer multiplicar seu investimento, além de condomínio pode ser também uma chácara para produção de alimentos, energia SOLAR. Pode-se fazer um estudo sobre a cidade de NAZARÉ DAS FARINHAS e adjancências para saber o que montar nesse espaço, já tendo água pelo RIO E ENERGIA SOLAR INSTALADA.

Informações Adicionais

  • Área Privativa 20000.00 (m²)
  • Área Total 20000.00 (m²)
  • Aceita Financiar Não
  • Aceita FGTS Sim
  • Aceita Permuta Não

Localização

  • Região Nazaré das Farinhas
  • Endereço Consulte
  • Número Consulte
  • Complemento Consulte
  • Cidade Nazaré - BA
  • Bairro Centro

Características do Imóvel

  • Vista p/ Rio

Características do Condomínio

  • Poço Artesiano

Tem Por Perto do Imóvel

  • Açougue
  • Banco
  • Barzinhos
  • Centro da Cidade
  • Cursinho
  • Delegacia de Polícia
  • Escola 1º Grau
  • Escola 2º Grau
  • Faculdade
  • Farmácia
  • Feiras
  • Hospital
  • Igreja Católica
  • Igreja Evangélica
  • Lanchonete
  • Lavanderia
  • Lojas
  • Mercado
  • Panificadora
  • Ponto Turístico
  • Praça/Parque
  • Praia
  • Pré-escola
  • Rodoviária
  • Secretária de Obras da Prefeitura

ENTRAR EM CONTATO

Você não deve preencher esse campo
Você não deve modificar esse campo
Corretor Responsável

Vânia Nazaré

(71) 99210-5927

CRECI: 11030 BA

Atendimento

Entre em contato agora!

(71) 99210-5927

CRECI: 11030/BA

Gerenciar Favoritos
Nenhum imóvel adicionado!
0